
Jaypee Greens Garden Isles is a large, Y‑shaped‑tower residential project by Jaypee Greens in Sector 133, Noida, spread over about 32 acres within the Wish Town township and offering around 2,900 three‑side‑open 2, 3 and 4 BHK apartments (roughly 1,205–2,690 sq ft) with extensive landscaped greens, clubhouse, pool, sports facilities and township‑level connectivity along the Noida–Greater Noida Expressway.
8 features available in this project.
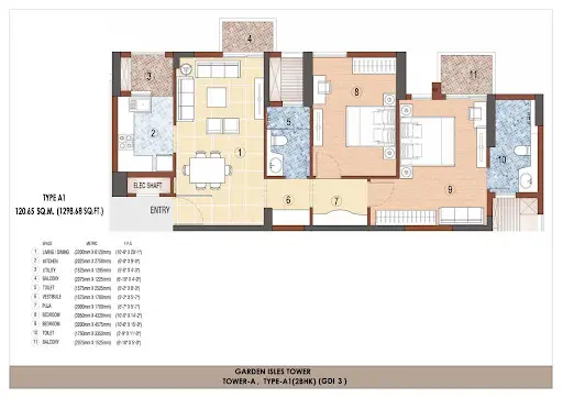
Choose BHK • Compare areas • View plan

Explore nearby schools, hospitals, transport, markets and parks.
How to use:
1. Select a facility type above • 2. Click any marker on the map • 3. View routes and distances